Neu Mehrfamilienhaus - Kauf - Faurndau

Attraktives Baugrundstück mit genehmigem Bauprojekt für ein Sechsfamilienhaus

449.000 €
Faurndau
Objektart
Haus
Objekttyp
Mehrfamilienhaus
Vermarktungsart
Kauf
PLZ
73035
Ort
Faurndau
Zimmer
15
Wohnfläche
550 m²
Grundstück
703 m²
Warmwasser enthalten
Nein
Provision
3,57%
Fahrstuhl
Preis auf Anfrage
Nein
vermarktungsstatus
Neu

Beschreibung:

Attraktives Baugrundstück mit genehmigtem Bauprojekt für ein
Sechsfamilienhaus in Göppingen-Faurndau.

In bevorzugter Wohnlage von Göppingen-Faurndau steht dieses attraktives
Baugrundstück zum Verkauf - ideal für Invenstoren, Bauträger oder private
Bauherren, die eine hochwertige Wohnimmobilie in gefragter Lage realisieren
möchten.

Das Grundstück verfügt bereits über eine rechtskräftige Baugenehmigung
für ein modernes Mehrfamilienhaus mit sechs Wohneinheiten.
Damit ist der Weg für eine zeitnahe Bebauung bereitet - ohne langwierige
Planungs-oder Genehmigungsprozesse.

Geplante Bebauung:

* Lage: Göppingen-Faurndau - ruhiges, gewachsenes Wohngebiet mit sehr guter
Infrastruktur.
* Grundstücksgröße: ca 703 m²
* Bebauung: genehmigtes Bauvorhaben für ein Sechsfamilienhaus
* Wohnfläche ( geplant): ca 550m²
* Personenaufzug
* Stellplätze; 6 PKW Stellplätze und 14 überdachte Fahrradplätze
* Kinderspielplatz
* Bauweise: Massivbau, moderne Architektur
* Erschließung: voll erschlossen

Besonderheiten:
* sofortiger Baubeginn möglich ( Baugenehmigung liegt vor)
* Hochwertige Architektur und durchdachte Grundrisse
* Gute Vermietbarkeit durch gefragte Wohnlage
* Attraktive Renditechance für Kapitalanlager

Fazit:
Ein seltenes Angebot in dieser Lage - ein bautragergeeignetes Grundstück mit
fertiger Baugenehmigung in Göppingen-Faurndau.
Ideal, um kurzfristig ein attraktives Wohnprojekt zu realisieren.

Lagebeschreibung:

Lagebeschreibung – Göppingen-Faurndau

Faurndau ist ein gefragter Stadtteil von Göppingen und überzeugt durch seine hervorragende Infrastruktur und angenehme Wohnlage. Einkaufsmöglichkeiten, Schulen, Kindergärten, Ärzte und Freizeitangebote befinden sich in unmittelbarer Nähe.

Die Verkehrsanbindung ist ausgezeichnet: Über die B10 erreichen Sie Ulm und Stuttgart in kurzer Fahrzeit, und der Bahnhof Faurndau bietet eine direkte Anbindung an das regionale Schienennetz. Gleichzeitig genießen Sie hier eine ruhige, grüne Umgebung – ideal für Familien und Berufspendler gleichermaßen.

Ausstattung:

Energieausweis:

Ausstattungsbeschreibung:

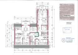
Das genehmigte Bauprojekt sieht den Neubau eines modernen Mehrfamilienhauses mit sechs Wohneinheiten vor. Die Architektur überzeugt durch eine klare, zeitlose Gestaltung mit großzügigen Fensterflächen und durchdachten Grundrissen, die lichtdurchflutete Wohnräume schaffen.


Das geplante Gebäude verteilt sich auf drei Geschosse und bietet insgesamt eine Wohnfläche von ca. 550 m². Jede Wohnung verfügt über eine eigene Terrasse oder einen Balkon und ist so konzipiert, dass sie den Ansprüchen moderner Mieter und Eigennutzer gleichermaßen gerecht wird.


Die Ausstattung ist zeitgemäß und hochwertig geplant – mit Fokus auf Energieeffizienz, Komfort und Langlebigkeit.



Geplante Ausstattungsmerkmale:



Helle, offene Wohn- und Essbereiche
Große Fensterflächen mit Dreifachverglasung
Fußbodenheizung in allen Wohneinheiten
Hochwertiger Bodenbelag (z. B. Parkett oder Design-Vinyl)
Moderne Bäder mit Marken-Sanitärausstattung
Balkon oder Terrasse bei jeder Wohnung
Aufzug über alle Etagen
Abstellräume und gemeinschaftlicher Waschraum
Geplante Tiefgarage bzw. Außenstellplätze
Energetische Bauweise gemäß aktueller EnEV / GEG-Standard

Sonstige Angaben:

Die Baugenehmigung sowie die vollständigen Planungsunterlagen können auf
Anfrage einsehen werden.
Gerne stellen wir Ihnen das Projekt im Detail vor und stehen für Rückfragen
oder persönliche Besichtung zur Verfügung.

Da wir uns bei allen Angaben auf die Informationen Dritter stützen müssen, können wir keine Gewähr für deren Richtigkeit und Vollständigkeit übernehmen.

Bitte haben Sie Verständnis dafür, dass wir nur Anfragen mit vollständiger Adressangabe und erreichbarer Handynummer bearbeiten können.

Nachdem Ihre Anfrage per E-Mail bei uns eingegangen ist, werden wir uns mit Ihnen zur Abstimmung eines Besichtigungstermins in Verbindung setzen. Bitte nennen Sie deshalb in Ihrer E-Mail eine
Tel.-Nr., unter der wir Sie sicher erreichen können.



Folgende Kosten sind im Kaufpreis nicht enthalten und vom Käufer zusätzlich zu entrichten: Notar- und Grundbuchkosten (ca. 2 %), Grunderwerbsteuer (5 %), und die mit der Finanzierung entstehenden Kosten. 3,57 % Maklerprovision inkl. gesetzlicher MwSt..
Ab dem Zeitpunkt der Übergabe hat der Käufer die Grundsteuer zu tragen.

Irrtümer vorbehalten. Die Objektdaten beruhen auf Angaben und Unterlagen, die uns vom Veräußerer zur Verfügung gestellt wurden. Für inhaltliche Richtigkeit und Vollständigkeit übernehmen wir keine Haftung. Eine Weitergabe an Dritte ist nicht gestattet.

Haben Sie Fragen oder möchten Sie wissen, was Ihre Immobilie wert ist?

Sie möchten Ihre Immobilie verkaufen oder vermieten?

Wir verfügen über tiefgehende Kenntnis des bestehenden Immobilienmarktes und entwickeln gerne eine individuelle Verkaufsstrategie für Sie. Wir bewerten Ihre Immobilie unverbindlich, kostenfrei und marktgerecht. Gerne beraten wir Sie in unserem Büro, per Telefon oder per Mail.

Remax Immobilien in Uhingen

Reiner Höhl & Olga Höhl GbR
Ulmer Str.17
73066 Uhingen

Dann rufen Sie uns an – RE/MAX Uhingen ist Ihr kompetenter Partner rund um den Verkauf und die Vermietung Ihrer Immobilie.

Telefon: 07161 / 401 37 91
Olga Höhl
Olga Höhl
RE/MAX Best Concept Olga Höhl& Reiner Höhl GbR
07161-401 37 91
Jeder Lizenznehmer ist ein rechtlich eigenständiges Unternehmen und handelt auf eigene Rechnung und Verantwortung.