Attraktives Baugrundstück mit genehmigem Bauprojekt für ein Sechsfamilienhaus
Beschreibung:
Attraktives Baugrundstück mit genehmigtem Bauprojekt für einSechsfamilienhaus in Göppingen-Faurndau.
In bevorzugter Wohnlage von Göppingen-Faurndau steht dieses attraktives
Baugrundstück zum Verkauf - ideal für Invenstoren, Bauträger oder private
Bauherren, die eine hochwertige Wohnimmobilie in gefragter Lage realisieren
möchten.
Das Grundstück verfügt bereits über eine rechtskräftige Baugenehmigung
für ein modernes Mehrfamilienhaus mit sechs Wohneinheiten.
Damit ist der Weg für eine zeitnahe Bebauung bereitet - ohne langwierige
Planungs-oder Genehmigungsprozesse.
Geplante Bebauung:
* Lage: Göppingen-Faurndau - ruhiges, gewachsenes Wohngebiet mit sehr guter
Infrastruktur.
* Grundstücksgröße: ca 703 m²
* Bebauung: genehmigtes Bauvorhaben für ein Sechsfamilienhaus
* Wohnfläche ( geplant): ca 550m²
* Personenaufzug
* Stellplätze; 6 PKW Stellplätze und 14 überdachte Fahrradplätze
* Kinderspielplatz
* Bauweise: Massivbau, moderne Architektur
* Erschließung: voll erschlossen
Besonderheiten:
* sofortiger Baubeginn möglich ( Baugenehmigung liegt vor)
* Hochwertige Architektur und durchdachte Grundrisse
* Gute Vermietbarkeit durch gefragte Wohnlage
* Attraktive Renditechance für Kapitalanlager
Fazit:
Ein seltenes Angebot in dieser Lage - ein bautragergeeignetes Grundstück mit
fertiger Baugenehmigung in Göppingen-Faurndau.
Ideal, um kurzfristig ein attraktives Wohnprojekt zu realisieren.
Lagebeschreibung:
Lagebeschreibung – Göppingen-FaurndauFaurndau ist ein gefragter Stadtteil von Göppingen und überzeugt durch seine hervorragende Infrastruktur und angenehme Wohnlage. Einkaufsmöglichkeiten, Schulen, Kindergärten, Ärzte und Freizeitangebote befinden sich in unmittelbarer Nähe.
Die Verkehrsanbindung ist ausgezeichnet: Über die B10 erreichen Sie Ulm und Stuttgart in kurzer Fahrzeit, und der Bahnhof Faurndau bietet eine direkte Anbindung an das regionale Schienennetz. Gleichzeitig genießen Sie hier eine ruhige, grüne Umgebung – ideal für Familien und Berufspendler gleichermaßen.
Ausstattung:
Energieausweis:
Ausstattungsbeschreibung:
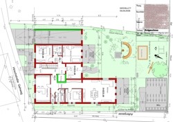
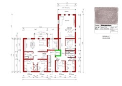
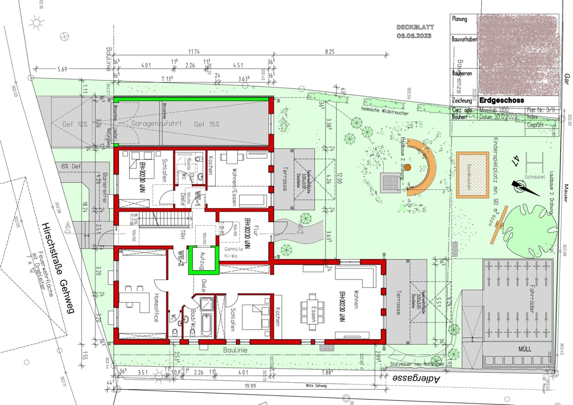
Das genehmigte Bauprojekt sieht den Neubau eines modernen Mehrfamilienhauses mit sechs Wohneinheiten vor. Die Architektur überzeugt durch eine klare, zeitlose Gestaltung mit großzügigen Fensterflächen und durchdachten Grundrissen, die lichtdurchflutete Wohnräume schaffen.Das geplante Gebäude verteilt sich auf drei Geschosse und bietet insgesamt eine Wohnfläche von ca. 550 m². Jede Wohnung verfügt über eine eigene Terrasse oder einen Balkon und ist so konzipiert, dass sie den Ansprüchen moderner Mieter und Eigennutzer gleichermaßen gerecht wird.
Die Ausstattung ist zeitgemäß und hochwertig geplant – mit Fokus auf Energieeffizienz, Komfort und Langlebigkeit.
Geplante Ausstattungsmerkmale:
Helle, offene Wohn- und Essbereiche
Große Fensterflächen mit Dreifachverglasung
Fußbodenheizung in allen Wohneinheiten
Hochwertiger Bodenbelag (z. B. Parkett oder Design-Vinyl)
Moderne Bäder mit Marken-Sanitärausstattung
Balkon oder Terrasse bei jeder Wohnung
Aufzug über alle Etagen
Abstellräume und gemeinschaftlicher Waschraum
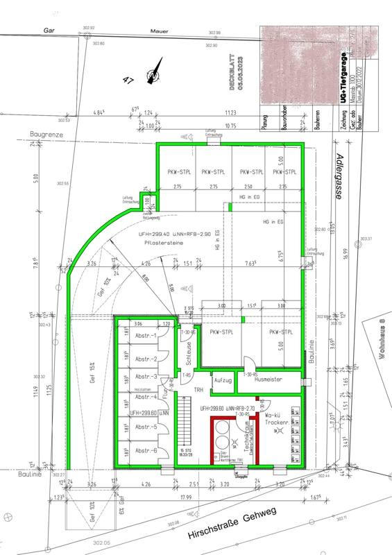
Geplante Tiefgarage bzw. Außenstellplätze
Energetische Bauweise gemäß aktueller EnEV / GEG-Standard
Sonstige Angaben:
Die Baugenehmigung sowie die vollständigen Planungsunterlagen können aufAnfrage einsehen werden.
Gerne stellen wir Ihnen das Projekt im Detail vor und stehen für Rückfragen
oder persönliche Besichtung zur Verfügung.
Da wir uns bei allen Angaben auf die Informationen Dritter stützen müssen, können wir keine Gewähr für deren Richtigkeit und Vollständigkeit übernehmen.
Bitte haben Sie Verständnis dafür, dass wir nur Anfragen mit vollständiger Adressangabe und erreichbarer Handynummer bearbeiten können.
Nachdem Ihre Anfrage per E-Mail bei uns eingegangen ist, werden wir uns mit Ihnen zur Abstimmung eines Besichtigungstermins in Verbindung setzen. Bitte nennen Sie deshalb in Ihrer E-Mail eine
Tel.-Nr., unter der wir Sie sicher erreichen können.
Folgende Kosten sind im Kaufpreis nicht enthalten und vom Käufer zusätzlich zu entrichten: Notar- und Grundbuchkosten (ca. 2 %), Grunderwerbsteuer (5 %), und die mit der Finanzierung entstehenden Kosten. 3,57 % Maklerprovision inkl. gesetzlicher MwSt..
Ab dem Zeitpunkt der Übergabe hat der Käufer die Grundsteuer zu tragen.
Irrtümer vorbehalten. Die Objektdaten beruhen auf Angaben und Unterlagen, die uns vom Veräußerer zur Verfügung gestellt wurden. Für inhaltliche Richtigkeit und Vollständigkeit übernehmen wir keine Haftung. Eine Weitergabe an Dritte ist nicht gestattet.
Haben Sie Fragen oder möchten Sie wissen, was Ihre Immobilie wert ist?
Sie möchten Ihre Immobilie verkaufen oder vermieten?
Wir verfügen über tiefgehende Kenntnis des bestehenden Immobilienmarktes und entwickeln gerne eine individuelle Verkaufsstrategie für Sie. Wir bewerten Ihre Immobilie unverbindlich, kostenfrei und marktgerecht. Gerne beraten wir Sie in unserem Büro, per Telefon oder per Mail.
Remax Immobilien in Uhingen
Reiner Höhl & Olga Höhl GbR
Ulmer Str.17
73066 Uhingen
Dann rufen Sie uns an – RE/MAX Uhingen ist Ihr kompetenter Partner rund um den Verkauf und die Vermietung Ihrer Immobilie.
Telefon: 07161 / 401 37 91
Sie wollen mehr erfahren?
Wenn Sie uns eine Nachricht über das Kontaktformular senden, melden wir uns schnellstmöglich bei Ihnen:

 
										






